Labordeboy da un paso fundamental en la concreción del sueño de la casa propia para sus habitantes con el lanzamiento del programa «Labordeboy, Mi Hogar». Esta iniciativa surge de la colaboración entre la Comuna y la Constructora Domus, ofreciendo opciones accesibles y flexibles para quienes deseen adquirir su vivienda en la localidad.
El programa contempla dos modalidades de construcción adaptadas a las necesidades y posibilidades de los vecinos, permitiendo la edificación en terrenos propios o comunales. Además, se ofrecen dos modelos de vivienda según las necesidades de cada familia:
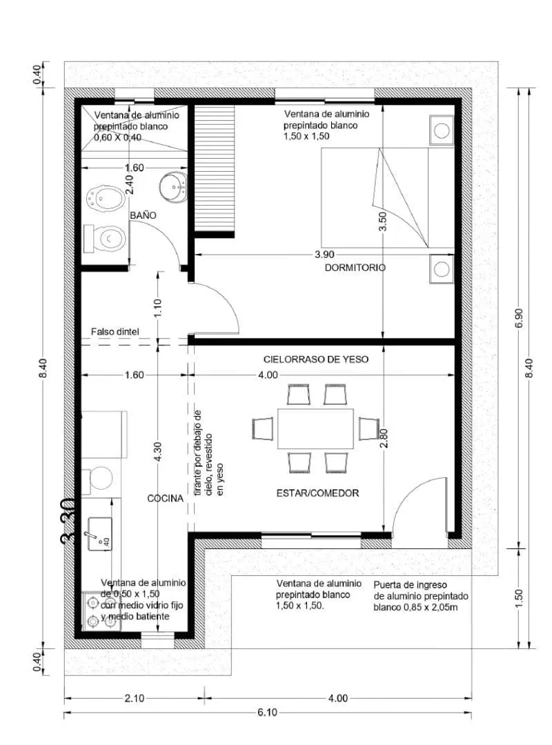
- Tipología MINIMALISTA 45,25 m²: 1 o 2 dormitorios, cocina, estar comedor y 1 baño.
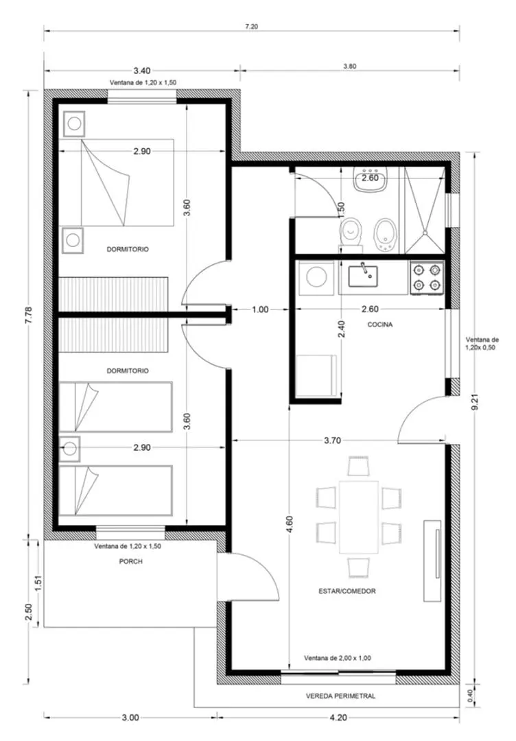
- Tipología MINIMALISTA 62,50 m²: 2 dormitorios, cocina, estar comedor y 1 baño.
- Llave en mano: Viviendas completamente terminadas y listas para habitar.
- Construcción gris: Estructura básica con los elementos esenciales, incluyendo la participación de la mano de obra comunal para terminaciones interiores, pilar de luz, limpieza y nivelación del terreno.

Tipología MINIMALISTA 62,50 m².
En cuanto al financiamiento, el plan propone una accesibilidad notable con un esquema de pago de hasta 12 años. Se han establecido los siguientes valores iniciales:
- Adelantos que oscilan entre $8.000.000 y $12.000.000, dependiendo de la superficie de la vivienda (45 m² a 62 m²).
- Cuotas mensuales que varían entre $190.000 y $290.000, ajustadas conforme al Índice de Construcción de Córdoba.
- No se requiere la intervención de entidades bancarias para acceder al financiamiento.
Para brindar detalles sobre el programa y resolver inquietudes, se llevó a cabo una reunión informativa el pasado viernes 31 de enero a las 15:00 hs. en el Punto Violeta.
Sistema de Construcción
Las construcciones se realizan con un sistema tradicional-mixto. En el exterior, se destacan por su elegante revestimiento de ladrillo y revoque plástico, proporcionando un excelente aislamiento térmico y acústico.
En el interior, se emplea un sistema seco eficiente con placas de durlock, lo que permite una construcción rápida y limpia, sin tiempos de secado prolongados. Esto reduce el tiempo de obra y minimiza molestias. Además, este sistema ofrece flexibilidad en la distribución de los espacios y facilita futuras modificaciones.
El sistema constructivo mixto combina estética y funcionalidad, logrando viviendas con un exterior robusto de ladrillo y un interior versátil y moderno.
Desde la Comuna de Labordeboy agradecen a los vecinos que participaron de esta instancia clave para conocer más sobre la propuesta y dar el primer paso hacia la concreción de su vivienda propia.
Planos de Tipología MINIMALISTA

Plano Tipología MINIMALISTA 45,25 m².

Plano Tipología MINIMALISTA 62,50 m².










